Fectio, Late Roman re-enactment society

What's New I Sitemap I Bibliography I Vortigern Studies l POLLS I LINKS l Games I Sitemaster
Vortigern I Wansdyke I Arthurian Collection I View Guestbook I Sign Guestbook l Webrings

Vortigern Studies > Fectio > Roman Sites > Heidentempel 1974

Fectio Index

VORTIGERNSTUDIES HOMEPAGE
FECTIO SITEMAP
WHAT IS NEW IN FECTIO
FECTIO BIBLIOGRAPHY
FECTIO LINKS
CONTACT US!

 

Roman Sites
click here

Heidentempel Germany
Tuesday 9 July 1974
Addig
Matronae Temple District
Bad access for the disabledFree access to the monument
Roman name: -
Roman Province: Germania Superior
Country: Germany
Province: Nordrhein-Westfalen
Nearest town: Euskirchen
Nearest village: Nöthen
Click to enlarge the map.
Map of the site.

Missing - one Matronae temple!This took some detective work. We had been on a short holiday in the northern Eifel with the family, and I came across an old picture which clearly showed Roman ruins; low walls and a statue of the Matronae. Later a second picture showed up, with more low walls from a different sanctuary. Clearly a temple, but where? There was no reference to a Roman site, apart from a short note that we saw a Roman aquaduct that day. My recollection only told me that we played in the little stream with our cousins, building dams like we did often that holiday. No-one in the family had any recollection of what was in the pictures. The area, which lies to the SW of Cologne, boasts a good deal of Roman remains. The aquaduct, also locally called the Römerkanal, was quickly found, in the vicinity of the village called Urft, where these ruins were said to have been. With a good map and a better book at hand, it turned out that it probably was a Gallo-Roman temple complex, and a big one at that! Trouble was, there were more of them! Three, all of them dedicated to the Matronae- which was mine?

The first was the great temple complex at Nettersheim, north of the town of Blankenheim. Nettersheim is a regular Roman hotspot, with no less than two temple complexes, industrial estates, wells, aquaducts, a villa rustica and a Roman road.
The Gallo-Roman temple at Nettersheim-Zingsheim clearly wasn't my temple - no walls visible. The large complex on the Görresburg however showed the low walls and the statues of the Matronae which were also in my old picture, but..the site was competely bare. No trees in sight, where the 1973 picture showed heavy forest cover.
A last candidate was that on the Addig at Bad Münstereifel-Nöthen, also known as the Heidentempel. This looked like it could also be it, judging from the many trees. But where was the statue of the Matronae? The text confirmed it - because no votive stones were left in one piece, archaeologists had used a replica from the Nettersheim-Zingsheim site! That explained it. I had found my temple.

Below are the pictures of the Heidentempel, the 'pagan temple'. Left are my anocient relics, right a modern comparison from a website (listed below). The left two pictures show me as a 9-year old, reaching down to the statue, flanked by my sister and brother and surrounded by more family, and how it looks today. The right two pictures show the sanctuary known as the basilica with the three of us posing as ancient statues.

Us kids on the reconstructed walls.
Us kids on the reconstructed walls.
The same spot, no kids around.
The same spot, no kids around. This is the colonnaded Gallo-Roman temple.
The 'basilica' in 1973.
The 'basilica' in 1973.
The same spot, shot a quarter of a century later.
The same spot, shot a quarter of a century later.

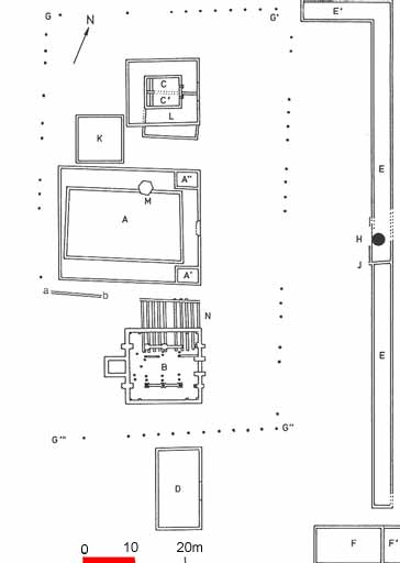
The complex at Bad Münstereifel-Nöthen was dedicated to the Matronae Vacallinehae or Vocallinehae. This temple was once probably a tree sanctuary, which was changed into a Gallo-Roman sanctuary at about 50 AD (Period I). About 100 years later it was enlarged, and two earlier temples changed into a larger new building (Period II). After about 330 AD it was completely destroyed to build a totally new complex (and that with the rise of Christianity all around!), most of the remains are still visible today (click here for the plan of the site). The walls of three buildings can be seen today, the northermost (C) being a Gallo-Roman colonnaded temple. The function of the middle building (A) is not recognized, while the third building (B), known as the Basilica, may well be another temple. Fragments of a statue of Jupiter were found, dating to Period II, and a long hall (E) may point to large numbers of pilgrims.

The Matronae Vacallinehae were probably the protection goddesses of the Vacalli tribe, as were the Matronae Fachinehhae from the neighbouring site at Nettersheim for the tribe of the Fachi. They protected the dwellings and blessed the fieldwork. The worshipping of three goddesses was a Celtic tradition, was was taken over by the Romans and Romanised at an early date. During the excavations many votive stones were found, but unfortunately all of them were smashed. This may have been an action by encroaching Christian influence, as the temple was destroyed about 450 AD.

Bibliography

VortigernStudies is copyright © Robert Vermaat 1999-2007. All rights reserved